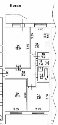
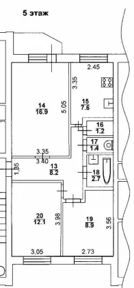
Продается 3-х комн. квартира, 59 кв.м., 5/5 эт
Обзор№ - 16299
| Стоимость | 4 200 000 |
|---|---|
| Статус Недвижимости Авито | Квартира |
| Балкон | Балкон |
| Доля в квартире | Нет |
| Комнат в квартире | 3 |
| Площадь, кв.м. | 59 |
| Жилая площадь | 37 |
| Площадь кухни, кв.м. | 7 |
| Этаж | 5 |
| Этажность | 5 |
| Материал стен | другой |
| Ремонт | Требует ремонта |
Адрес
| Населенный пункт | Таганрог |
|---|---|
| Район города | гостиница "Таганрог" |
| Улица | улица Пальмиро Тольятти |
В избранное 3-комн. квартира, 59 м², 5/5эт
Объект - #16299
Продается 3-комн. квартира, 59 м², 5/5эт, р-н гостиницы "Таганрог". Квартира требует ремонта. В квартире - большая кухня, три раздельные комнаты, кладовка, раздельный санузел. Застекленный балкон. Окна все м/п. Горячая вода централизованная. Этаж 5, без лифта. Дом ухоженный. Расположение великолепное - в непосредственной близости от всей инфраструктуры и в то же время тихий непроездной двор. Два окна выходят на рощу Дубки, два - на детский сад, в окна никто не заглядывает - домов "напротив" нет. Школа 37 - соседний двор. Торговый центр Москва в двух шагах. Все магазины ( пятерочки, магниты, пвз) в непосредственной близости





















