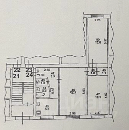
Продается 3-х комн. квартира, 55 кв.м., 1/6 эт
| Стоимость | 4 000 000 |
|---|---|
| Комнат в квартире | 3 |
| Площадь, кв.м. | 55 |
| Площадь кухни, кв.м. | 5 |
| Этаж | 1 |
| Этажность | 6 |
| Материал стен | Кирпич |
| Ремонт | Косметический |
| Населенный пункт | Таганрог |
|---|---|
| Район города | Западный |
| Улица | улица Транспортная |
Продается уютная 3-комнатная квартира в Таганроге по адресу: Транспортная улица, 121.
О квартире: общая площадь квартиры составляет 55.6 кв.м, кухня — 5 кв.м. Квартира находится на 1 этаже 6-этажного дома, окна выходят как на улицу, так и во двор. В квартире косметический ремонт, что позволяет вам сразу заехать и жить. Комнаты светлые и просторные, что создает уютную атмосферу. В квартире есть все необходимое для комфортного проживания: санузел, кухня со всеми коммуникациями.
О доме: дом в хорошем состоянии, регулярно проводится обслуживание. Для вашего удобства рядом с домом есть наземная парковка, поэтому можно не беспокоиться о поиске места для автомобиля. Район развит и удобен для жизни. В шаговой доступности находятся школы и детские сады, что особенно удобно для семей с детьми. Также рядом расположены магазины, где можно купить все необходимое для дома и быта.
О сделке: квартира не имеет обременений, документы готовы к сделке. Возможна ипотека. Приглашаем вас на просмотр! Записывайтесь на удобное для вас время и оцените все преимущества этой квартиры лично.























































